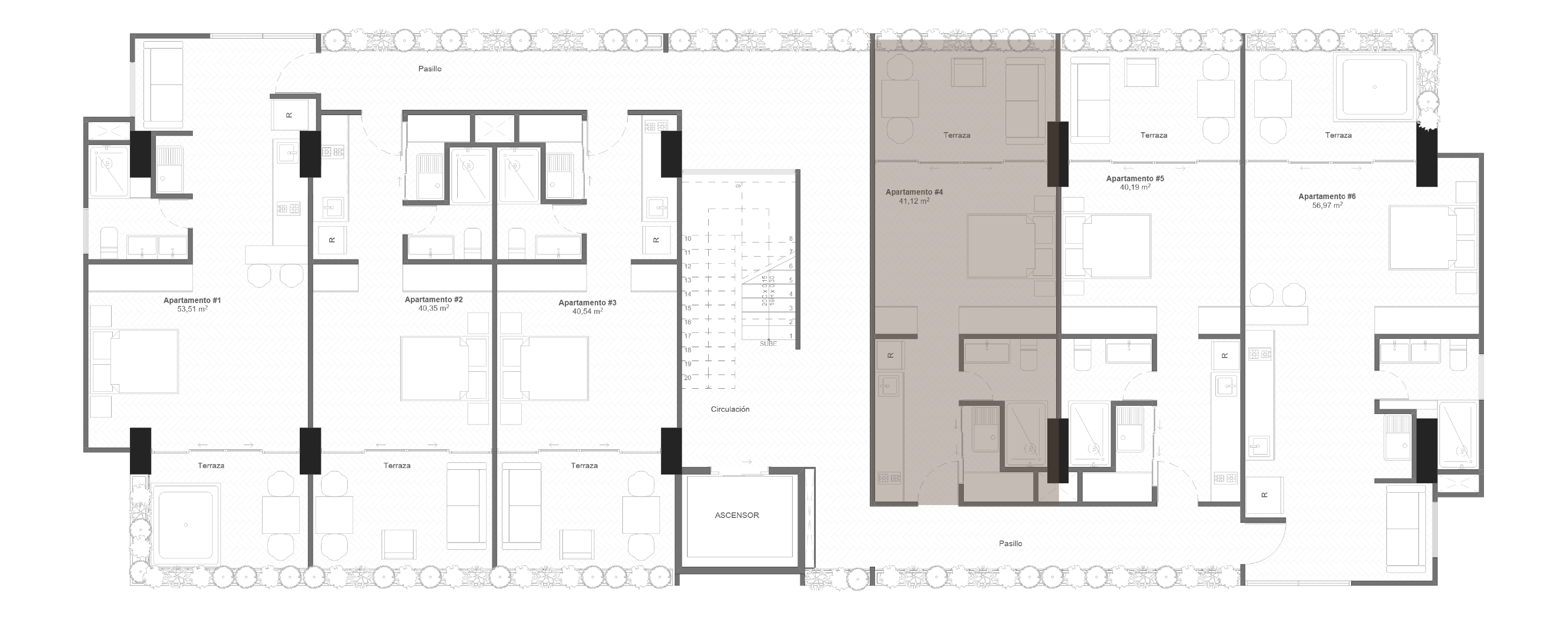
Ubicación en el piso

PLANOS DEL APARTAMENTO

* Plano referencial. Las medidas y distribución pueden variar. Consulte con nuestro equipo de ventas.
APTO 404
SÍMPLEXTIPO 2
DISPONIBLE
Áreas
Área privada total43.37 m²
Distribución
Habitaciones
1
Baños
1
Sala comedor
Integrada
Cocina
Lineal abierta
Terraza
10.64 m²
Lavandería
Dentro del apartamento
Precio
$ 263.298.750
Valor por m²$ 6.070.988 / m²