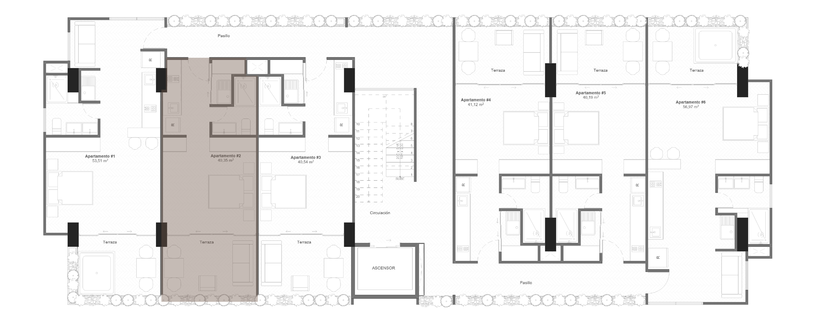
Ubicación en el piso

PLANOS DEL APARTAMENTO
P1

P2 · Mezz.

* Plano referencial. Las medidas y distribución pueden variar. Consulte con nuestro equipo de ventas.
APTO 502
DÚPLEXTIPO 2
DISPONIBLE
Áreas
Área privada total52.36 m²
Planta 138.29 m²
Planta 214.07 m²
Distribución
Habitaciones
1 + estudio en mezzanine
Baños
2
Sala comedor
Doble altura
Cocina
Abierta con barra
Terraza
10.64 m²
Lavandería
Independiente
Precio
$ 299.990.433
Valor por m²$ 7.834.694 / m²